Via Salvo D'Acquisto, 6/B • 41030 San Prospero MO
059 809411
Italiano

Stabile con Tre Appartamenti


170.000 €
220 m2
111111112 Camere
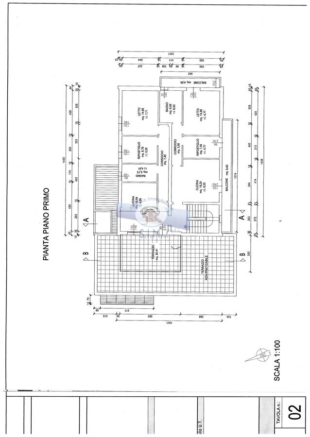
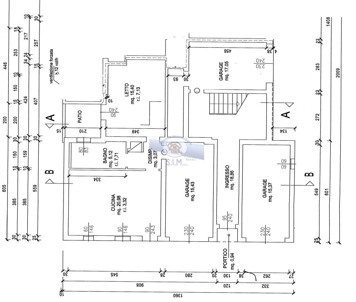
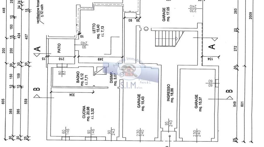
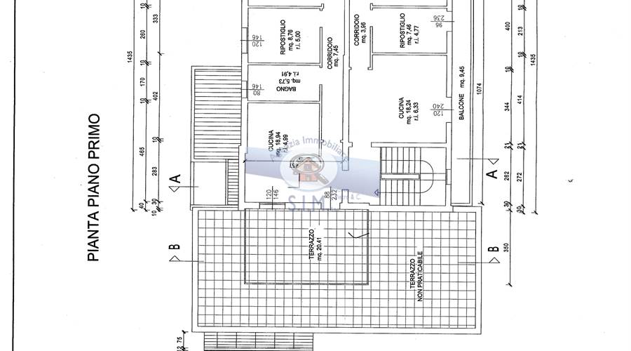
Rif. 37 Bomporto Frazione Gorghetto stabile con tre appartamenti di cui:
Piano terra ingresso, in sala con angolo cottura, camera matrimoniale con patio e bagno,
1 Piano 2 appartamenti entrambi con sala angolo cottura, disimpegno notte camera matrimoniale, camera singola e bagno, 2 balconi un terrazzo, la proprietà si completa con 3 garage ed area esclusiva di 135 mq €.170.000,00 trattabile IMMOBILI PRONTI ALL'USO. Vi invitiamo a lasciare un vostro numero di telefono per essere contattati. Presso il nostro ufficio abbiamo altre proposte immobiliari nelle zone di Bastiglia, Bomporto, Sorbara, San Prospero e San Pietro in Elda, Ravarino, Stuffione, Nonantola, Modena. CONTATTATECI SENZA ALCUN IMPEGNO!
Caratteristiche principali
Codice
37/G
Città
Bomporto
Categoria
Stabile / Palazzo
Locali
10
Camere
111111112
Mq
220
Mq Box
48
Mq Giardino
135
Mq Balcone
15
mq Terrazzo
20
Classe energetica
F
Stato Immobile
Buono
Grado
Medio
Posizione
Periferia
Panorama
Vista Aperta
Orientamento
Nord Ovest Sud Est
Lati Liberi
3
Giardino
Privato
Arredi
Non Arredato
Tipo Soggiorno
Sala da Pranzo
Tipo Cucina
Angolo Cottura
Riscaldamento
Autonomo
Tipo Riscaldam.
Caldaia
Tipo Impianto
Radiatori
Fonte Energetica
Metano
Acqua Calda
Autonoma
Raffrescamento
Split
Infissi
Legno Doppio Vetro
Serramenti
Buono
Persiana
Tapparella PVC
Pavim. Giorno
Ceramica
Pavim. Notte
Ceramica
Pavim. Cucina
Ceramica
Pavim. Bagno
Ceramica
Pavimento
Ceramica
Tipo Saracinesca
Manuale
Accesso Disabili
Nessuna Barriera
Accesso interno disabili
Pieno accesso
Appartamenti
Tre
Isolamento
Non presente
Isolamento acustico
Nessuno
Destinato a residenti
Si
Accessori
Aria Condizionata, Bagno Handicap, Cancello Elettrico, Doppi Vetri, Passaggio Automobilistico, Porta Blindata, Ripostiglio, Zanzariere
Richiedi informazioni
Invia
Cookie preference